Woonoppervlakte
Circa 147 m²
Perceeloppervlakte
Circa 197 m²
Bouwjaar
Gebouwd in 2000
Aantal kamers
5 kamers (4 slaapkamers)

Madeliefberg 49

4708 NP, Roosendaal (Noord-Brabant)

Welkom op de Madeliefberg 49, een prachtige tussenwoning in de populaire wijk de Weihoek in Roosendaal. Hier woon je niet alleen comfortabel, maar ook op een plek waar levenskwaliteit voorop staat. Deze woning is instapklaar, heeft vier slaapkamers, een luxe badkamer, een open keuken met inbouwapparatuur én zonnepanelen op het dak, een ideale combinatie van stijl, ruimte en duurzaamheid. Zie jij jezelf hier al wonen? Plan snel die bezichtiging in, dit pareltje wil je niet missen!

Entree
Parkeren doe je gemakkelijk op de openbare plekken voor de deur. Via een strak afgewerkte hal met toegang tot het toilet en de woonkamer, krijg je direct een warme, verzorgde eerste indruk.

Wonen & Koken
De woonkamer is royaal en heerlijk licht, met een fijne zithoek aan het raam, perfect om naar buiten te turen met een kopje koffie. Aan de achterzijde vind je voldoende ruimte voor een grote eettafel, waar je gezellig kunt tafelen met uitzicht op de tuin. De open keuken sluit naadloos aan op de eethoek en de woonkamer, waardoor je altijd in contact blijft met je gezelschap. De keuken is voorzien van strak afgewerkte kasten en diverse luxe inbouwapparatuur, een ideale plek voor iedere thuiskok!

Slapen, Dromen & Douchen
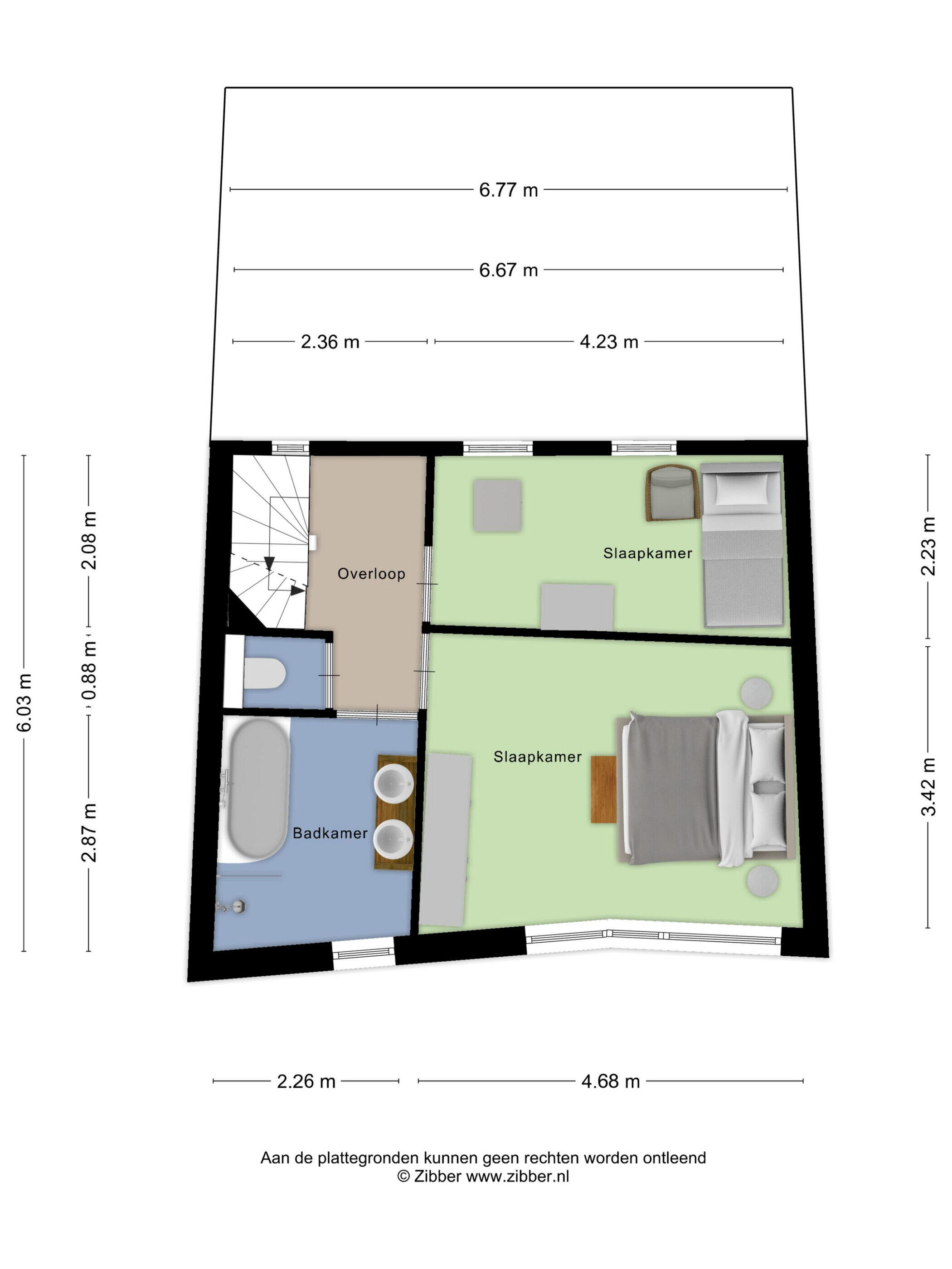
Op de eerste verdieping vind je twee ruime slaapkamers: perfect voor een master bedroom én een extra slaapkamer voor een kind, thuiskantoor of hobbyruimte. De badkamer is modern en luxe ingericht met een inloopdouche, dubbele wastafel en een heerlijk ligbad, een fijne plek om je dag ontspannen te beginnen of juist af te sluiten. De tweede verdieping biedt nog eens twee slaapkamers, waarvan één grotere en één compactere, ideaal als kinderkamer of werkkamer. Daarnaast is er ook een handige berging aanwezig.

Tuinieren, Zonnen & Genieten
De tuin is keurig aangelegd met een leuke zit- en eethoek, groen aangekleed met planten en voorzien van een houten berging. De tuin biedt voldoende privacy en is de perfecte plek om te barbecueën, te ontspannen of om de kinderen lekker te laten spelen.

Omgeving en Faciliteiten
De Weihoek is één van de meest geliefde wijken van Roosendaal. Je woont hier in een prettige woonomgeving met volop groen, speeltuinen en goede voorzieningen in de buurt. Scholen, winkels, supermarkten en sportclubs liggen op korte afstand, net als het openbaar vervoer en de uitvalswegen richting Breda en Antwerpen. Of je nu jong bent of al wat meer levenservaring hebt, deze wijk voelt voor iedereen als thuiskomen.

Toelichtingsclausule NEN2580:
De Meetinstructie is gebaseerd op de NEN2580. De Meetinstructie is bedoeld om een meer eenduidige manier van meten toe te passen voor het geven van een indicatie van de gebruiksoppervlakte. De Meetinstructie sluit verschillen in meetuitkomsten niet volledig uit, door bijvoorbeeld interpretatieverschillen, afrondingen of beperkingen bij het uitvoeren van de meting.

Plattegronden

Overdracht

Vraagprijs
€ 475.000 k.k.
Status
Verkocht
Aanvaarding
In overleg

Bouw

Object type
Eengezinswoning, tussenwoning
Soort bouw
Bestaande bouw
Bouwjaar
2000
Soort dak
Plat dak bedekt met bitumineuze dakbedekking

Oppervlakte en inhoud

Woonoppervlakte
147 m²
Perceeloppervlakte
197 m²
Inhoud
521 m³
Externe bergruimte
11 m²
Gebouwgeb. buitenruimte
1 m²

Indeling

Aantal kamers
5 kamers (4 slaapkamers)
Aantal badkamers
1 badkamer
Badkamervoorzieningen
Ligbad, douche, wastafel
Aantal woonlagen
3 woonlagen
Voorzieningen
Mechanische ventilatie, zonnepanelen

Energie

Energielabel
B
Energielabel registratie
21-05-2019
Isolatie
Dakisolatie, muurisolatie, vloerisolatie, dubbel glas
Verwarming
Cv-ketel
Warm water
Cv-ketel
Cv ketel
Remeha combiketel gas gestookt uit 2020 (eigendom)

Buitenruimte

Tuin
Achtertuin, voortuin

Bergruimte

Schuur / berging
Vrijstaande houten berging

Garage

Soort garage
Geen garage

Parkeergelegenheid

Soort parkeergelegenheid
Openbaar parkeren

Energieverbruik in Roosendaal

Energielabel deze woning

Energielabel B

Publicatie energielabel: 21-05-2019

Stroomverbruik per jaar

2790 kWh

(Gemiddelde tussenwoning in Roosendaal)

Gasverbruik per jaar

1080 m³

(Gemiddelde tussenwoning in Roosendaal)

* Cijfers zijn afkomstig van het CBS en bedoeld als indicatie en kunnen verschillen voor deze woning

Indicatie hypotheeklasten

Eigen inleg:
Spaargeld / overwaarde

Rente:
Laagste 10-jaars rente

Laagste 10-jaars rente

2,73% - Centraal Beheer Groen... - NHG


3% - Centraal Beheer Groen Lee... - 80%

Laagste 20-jaars rente

3,18% - Argenta Groen Hypothee... - NHG


3,39% - Argenta Groen Hypothee... - 80%

Laagste 30-jaars rente

3,35% - Argenta Groen Hypothee... - NHG


3,56% - Argenta Groen Hypothee... - 80%


Hypotheek:

Bruto maandlasten: € 0 p/m

Netto maandlasten: € 0 p/m

Hoe berekenen we dit?

Het rentepercentage is gebaseerd op de laagste 10 jaars vaste rente voor één hypotheekdeel. De vermelde rente (3% zonder NHG) is gecontroleerd op 19-11-2025. Deze berekening is gebaseerd op een annuïteitenhypotheek die volledig wordt afgelost, waarbij de maandlasten gedurende de gehele looptijd gelijk blijven. De werkelijke rente en netto maandlasten kunnen variëren, afhankelijk van uw persoonlijke situatie en de hypotheekverstrekker. Raadpleeg een financieel adviseur voor een nauwkeurige berekening en advies. Aan deze berekening kunnen geen rechten worden ontleend; het dient enkel als indicatie.

Documentatie

Zonnegrenzen bekijken

Op de kaart

Inwoners in Roosendaal

Cijfers voor postcodegebied 4708

Totaal aantal inwoners
12330 inwoners
Mannen
50%
Vrouwen
50%

Inwoners in Roosendaal

Cijfers voor postcodegebied 4708

tot 15 jaar
15%
15 tot 25 jaar
13%
25 tot 35 jaar
20%
45 tot 65 jaar
35%
65 en ouder
17%

Huishoudens in Roosendaal

Cijfers voor postcodegebied 4708

Eenpersoons zonder kinderen
25%
Meerpersoons zonder kinderen
33%
Huishoudens zonder kinderen
58%

Huishoudens in Roosendaal

Cijfers voor postcodegebied 4708

Huishoudens met één kind
7%
Huishoudens met meerdere kinderen
36%
Huishoudens met kinderen
43%

Woningen in Roosendaal

Cijfers voor postcodegebied 4708

Woningen voor 1945
2%
Woningen tussen 1945 en 1965
2%
Woningen tussen 1965 en 1975
1%
Woningen tussen 1975 en 1985
1%
Woningen tussen 1985 en 1995
54%

Woningen in Roosendaal

Cijfers voor postcodegebied 4708

Woningen tussen 1995 en 2005
38%
Woningen tussen 2005 en 2015
2%
Woningen na 2015
1%
Huurwoningen
20%
Koopwoningen
80%

Overige in Roosendaal

Cijfers voor postcodegebied 4708

Gemiddelde WOZ waarde
€ 276.000,-
Personen onder de 65 met uitkering
Niet beschikbaar

Overige in Roosendaal

Cijfers voor postcodegebied 4708

Adressen per km²
1374
Stedelijkheid (schaal 1 op 5)
60%
Postcode kaart 4708 Gemeente kaart roosendaal

Indien u vragen heeft of u wilt een bezichtiging inplannen, dan kunt u gebruik maken van het formulier hiernaast. Er zal daarna op korte termijn contact met u worden opgenomen.

Vakidioten met een passie voor vastgoed

Bij C&R Makelaars draait alles om jou en je woning. Wij zijn een frisse, energieke generatie makelaars met een passie voor mensen en de woningmarkt.

We geloven in een persoonlijke aanpak zonder poespas: eerlijk, transparant en altijd met een flinke dosis enthousiasme. Het verkopen van je huis is een belangrijke stap, en daarom begeleiden we je op een manier die bij jou past, van begin tot eind.

Met onze diepgaande kennis van de lokale markt geven we je waardevol advies dat perfect aansluit bij jouw situatie én dat van potentiële kopers.

Daarnaast staat ons creatieve team van vastgoedmarketeers klaar om jouw woning in de schijnwerpers te zetten. Met slimme en doordachte strategieën zorgen we ervoor dat je huis opvalt en het maximale resultaat behaalt.

Jouw tevredenheid is ons einddoel. We zetten alles op alles om je verwachtingen te overtreffen. Nieuwsgierig naar ons team? Klik op de button hieronder en maak kennis met ons!

Vakidioten met een passie voor vastgoed
Reviews C&R Makelaars

Madeliefberg 49, Roosendaal

€ 475.000 k.k. - Verkocht

Helaas, deze woning is verkocht!

Net te laat, deze woning is al verkocht. Laat een zoekopdracht bij ons achter zodat wij u direct kunnen helpen wanneer er nieuw aanbod beschikbaar komt.